GBP

e-mail alert

To Sell - 3 Bedrooms - Rue de Babylone

  • 3 bedrooms
  • 2 bathrooms
  • 148 m²

The Michaël Zingraf agency offers you:

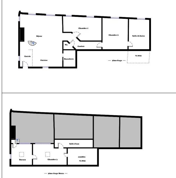
Located on rue de Babylone, ideally situated between Le Bon Marché, La Pagode, and Les Invalides, a duplex apartment with a townhouse feel, offering lots of charm and warmth, the whole being in very good condition. The property covers 148 m² on the floor (125.24 m² Carrez law area).

The property is located on the third and top floor without an elevator of a well-maintained historic building.

The apartment consists of an entrance, a beautiful living room with a very high ceiling, an open kitchen, a master suite with bathroom and toilet, a second large bedroom, guest toilet, and a laundry room.

Upstairs, a mezzanine office, a bedroom, and a shower room with toilet.

DPD 212 (D)
GES C

Fees to be paid by the seller
Carrez law
125 m²
Number of units in the co-ownership
60
No ongoing legal proceedings

Estimated annual energy expenses for standard use, based on energy prices of the en

Learn more

General

  • Reference MZIPARG249
  • Rooms 5 rooms
  • Area 148 m²
  • Heating device Radiator
  • Heating type Gas
  • Heating access Individual
  • Hot water device Boiler
  • Hot water access Individual
  • Waste water Main drainage
  • Condition Good condition
  • Floor 3rd floor / 3
  • Orientation North, West
  • View Slight Sky

Location

Features

  • 1 Entrance 6 m²
  • 1 Living/dining/kitchen area 42 m²
  • 1 Laundry room 2 m²
  • 1 Hallway 5 m²
  • 1 Suite 19 m²
  • 1 Bedroom 14 m²
  • 1 Children's room 11 m²
  • 1 Bathroom 11 m²
  • 1 Shower room 6 m²
  • 1 Lavatory 1 m²
  • 1 Office 8 m²

Services

  • Digicode
  • Caretaker
  • Double glazing
  • Internet
  • Concierge
  • Optical fiber
  • Alarm system
  • Intercom

Facilities

  • Bus
  • Town centre
  • Movies
  • Shops
  • Nursery
  • Primary school
  • Secondary school
  • Day care
  • Hospital/clinic
  • Doctor
  • Metro
  • Park
  • Public parking
  • Public pool
  • On main road
  • Sport center
  • Supermarket
  • Taxi
  • Tennis
  • University

Energy performance diagnosis: D

Greenhouse gas emissions: C

Diagnostic Graph
Diagnostic Graph

Financial

  • Agency fees payable by vendor

EPC

  • « Carrez » act 125.24 m²

Media

No information available

Sale Apartment Paris 7th Saint-Thomas-d'Aquin
Sale Apartment Paris 7th Saint-Thomas-d'Aquin
Sale Apartment Paris 7th Saint-Thomas-d'Aquin
Sale Apartment Paris 7th Saint-Thomas-d'Aquin
Sale Apartment Paris 7th Saint-Thomas-d'Aquin
Sale Apartment Paris 7th Saint-Thomas-d'Aquin
Sale Apartment Paris 7th Saint-Thomas-d'Aquin
Sale Apartment Paris 7th Saint-Thomas-d'Aquin
Sale Apartment Paris 7th Saint-Thomas-d'Aquin
Sale Apartment Paris 7th Saint-Thomas-d'Aquin
Sale Apartment Paris 7th Saint-Thomas-d'Aquin
Sale Apartment Paris 7th Saint-Thomas-d'Aquin
Sale Apartment Paris 7th Saint-Thomas-d'Aquin
Sale Apartment Paris 7th Saint-Thomas-d'Aquin
Sale Apartment Paris 7th Saint-Thomas-d'Aquin
Sale Apartment Paris 7th Saint-Thomas-d'Aquin
Sale Apartment Paris 7th Saint-Thomas-d'Aquin

Similar properties

Discover properties that will surely interest you.

This site is protected by reCAPTCHA and the Google Privacy Policy and Terms of Service apply.