GBP

e-mail alert

To sell - 2 Bedrooms- Perfect condition - Quai Voltaire

Exclusive
  • 2 bedrooms
  • 2 bathrooms
  • 145 m²

Exclusivity Michael Zingraf:

Located on Quai Voltaire in an 18th-century building with elevator, a 145 m² apartment completely renovated, on the 1st floor with elevator.

The property includes an entrance, a magnificent corner reception area with a west-facing exposure, enjoying a beautiful view of the Seine and the Louvre, a dining room, a fully equipped eat-in kitchen, two very large suites with bedroom, bathroom, dressing room, toilets, guest toilets, and plenty of storage.

Beautiful location and views.

www.georisques.gouv.fr

Number of lots: 16

€400 in monthly charges

Energy Performance Certificate (DPE) C
Greenhouse Gas Emissions (GES) C

Learn more

General

  • Reference MZIPARG266
  • Rooms 5 rooms
  • Area 145 m²
  • Heating device Radiator
  • Heating type Electric
  • Heating access Individual
  • Hot water device Boiler
  • Hot water access Individual
  • Waste water Main drainage
  • Condition Excellent condition
  • Floor 1st floor / 5
  • Orientation North, West
  • View Unobstructed Sky Main stem

Location

Features

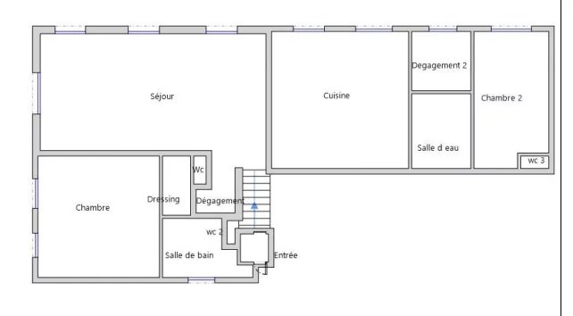
  • 1 Entrance 1 m²
  • 1 Corridor 6 m²
  • 1 Lavatory 1 m²
  • 1 Living room/dining area 40 m²
  • 1 Eat-in kitchen 29 m²
  • 1 Suite 22 m²
  • 1 Walk-in wardrobe 3 m²
  • 1 Lavatory 1 m²
  • 1 Corridor 6 m²
  • 1 Suite 15 m²
  • 1 Lavatory 1 m²
  • 1 Bathroom 5 m²
  • 1 Bathroom 10 m²

Services

  • Fire alarm system
  • Lift
  • Concierge
  • Optical fiber
  • Bike rental
  • Digicode
  • Caretaker
  • Videophone
  • Fireplace
  • Double glazing
  • Internet
  • Listed historic building
  • Security door

Facilities

  • Bus
  • Town centre
  • Movies
  • Shops
  • Nursery
  • Primary school
  • Secondary school
  • Day care
  • Hospital/clinic
  • Doctor
  • Metro
  • Convention center
  • Park
  • Public parking
  • Public pool
  • On main road
  • Sport center
  • Supermarket
  • Taxi
  • Tennis
  • University

Energy performance diagnosis: E

Greenhouse gas emissions: B

Diagnostic Graph
Diagnostic Graph

Financial

  • Agency fees payable by vendor
  • Fees 4800 € / yearly

EPC

  • « Carrez » act 145 m²

Media

No information available

Sale Apartment Paris 7th
Sale Apartment Paris 7th
Sale Apartment Paris 7th
Sale Apartment Paris 7th
Sale Apartment Paris 7th
Sale Apartment Paris 7th
Sale Apartment Paris 7th
Sale Apartment Paris 7th
Sale Apartment Paris 7th
Sale Apartment Paris 7th
Sale Apartment Paris 7th
Sale Apartment Paris 7th
Sale Apartment Paris 7th
Sale Apartment Paris 7th
Sale Apartment Paris 7th
Sale Apartment Paris 7th
Sale Apartment Paris 7th
Sale Apartment Paris 7th
Sale Apartment Paris 7th
Sale Apartment Paris 7th
Sale Apartment Paris 7th
Sale Apartment Paris 7th
Sale Apartment Paris 7th
Sale Apartment Paris 7th
Sale Apartment Paris 7th
Sale Apartment Paris 7th
Sale Apartment Paris 7th
Sale Apartment Paris 7th
Sale Apartment Paris 7th
Sale Apartment Paris 7th
Sale Apartment Paris 7th
Sale Apartment Paris 7th
Sale Apartment Paris 7th
Sale Apartment Paris 7th
Sale Apartment Paris 7th
Sale Apartment Paris 7th
Sale Apartment Paris 7th

This site is protected by reCAPTCHA and the Google Privacy Policy and Terms of Service apply.