GBP

e-mail alert

FOR SALE - 3 Bedroom Apartment - Ile de la Cité - Exceptional View

  • 3 bedrooms
  • 2 bathrooms
  • 145 m²

The Michaël Zingraf agency offers you:

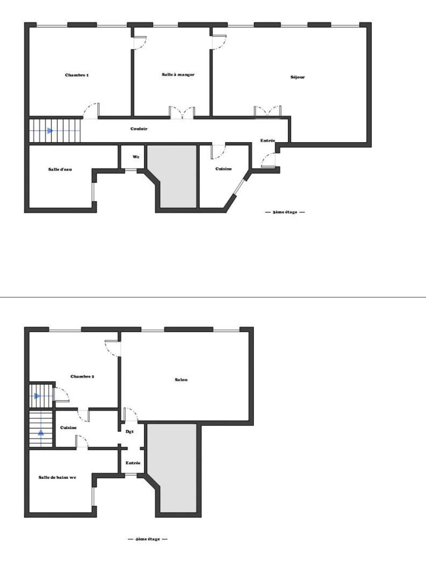
In the heart of Île de la Cité, in one of the most iconic locations in Paris, this 145 m² duplex apartment occupies the 3rd and 4th floors of a characterful building with a lift.

The charm is apparent from the moment you enter: the building's lobby, classified as a historic monument, reflects the elegance and prestige of the premises.

Inside, light floods in through eight large windows overlooking the Seine.

The view is simply exceptional: an open panorama of the river and La Samaritaine, offering a unique and rare perspective in the heart of the capital.

The living space extends over more than 100 m² on the 3rd floor, complemented by an additional 42 m² on the 4th floor.

Its layout allows for a refined design, with up to three bedrooms, while preserving generous reception areas.

The flat requires complete renovation, offering total freedom of layout and the possibility of creating a bespoke space worthy of this exceptional address.

A cellar completes this property.

(5.00% commission including VAT payable by the purchaser.)
Co-ownership of 36 lots.

No proceedings in progress.

DPE 304 / E
GES 39 / B

www.georisques.gouv.fr

Translated with DeepL.com (free version)

Learn more

General

  • Reference MZIPARG247
  • Rooms 5 rooms
  • Area 145 m²
  • Total area 145 m²
  • Heating device Radiator
  • Heating type Gas
  • Heating access District heating
  • Hot water device Hot water tank
  • Hot water access Individual
  • Waste water Main drainage
  • Condition Requires renovation
  • Floor 3rd floor / 2
  • Orientation South-west
  • View Unobstructed Monument Sky

Location

Features

  • 1 Entrance 3 m²
  • 1 Living room/dining area 38 m²
  • 1 Dining room 14 m²
  • 1 Bedroom 21 m²
  • 1 Hallway 8 m²
  • 1 Kitchen 7 m²
  • 1 Lavatory 2 m²
  • 1 Shower room 6 m²
  • 1 Bedroom 10 m²
  • 1 Bedroom 22 m²
  • 1 Corridor 1 m²
  • 1 Entrance 1 m²
  • 1 Kitchen 4 m²
  • 1 Bathroom / Lavatory 7 m²

Services

  • Lift
  • Fireplace
  • Digicode

Facilities

  • Airport
  • Highway
  • Bus
  • Town centre
  • Movies
  • Shops
  • Nursery
  • Primary school
  • Secondary school
  • Day care
  • Bus hub
  • TGV station
  • Hospital/clinic
  • Doctor
  • Metro
  • Convention center
  • Park
  • Public parking
  • Public pool
  • On main road
  • Sport center
  • Supermarket
  • Taxi
  • Tram
  • University

Energy performance diagnosis: E

Greenhouse gas emissions: D

Energy - Conventional consumption304kWh/m².year
Energy - Emissions estimate39kg CO2/m².year

Financial

  • Agency fees payable by vendor
  • Condominium fees 4452 € / yearly

EPC

  • « Carrez » act 144 m²

Media

No information available

Sale Apartment Paris 1st
Sale Apartment Paris 1st
Sale Apartment Paris 1st
Sale Apartment Paris 1st
Sale Apartment Paris 1st
Sale Apartment Paris 1st
Sale Apartment Paris 1st
Sale Apartment Paris 1st
Sale Apartment Paris 1st
Sale Apartment Paris 1st
Sale Apartment Paris 1st
Sale Apartment Paris 1st
Sale Apartment Paris 1st
Sale Apartment Paris 1st
Sale Apartment Paris 1st
Sale Apartment Paris 1st
Sale Apartment Paris 1st
Sale Apartment Paris 1st
Sale Apartment Paris 1st
Sale Apartment Paris 1st

Similar properties

Discover properties that will surely interest you.

This site is protected by reCAPTCHA and the Google Privacy Policy and Terms of Service apply.