Two balconies. Over 1,000 sq ft. Moments from Battersea Park and the Power Station.
Exclusive
General
- Reference 86918555
- Area 1061 sq ft
- Total area 1061 sq ft
- Hot water device Boiler
- Hot water access Individual
- Condition Excellent condition
- Floor 5th
Location
Features
- 3 Bedrooms
- 2 Bathrooms
Services
- Sliding windows
- Concierge
- Lift
- Intercom
- Video security
Facilities
- Bus 1 minute
- Movies
- Park 1 minute
- Sea port 10 minutes
- Shops
- Supermarket
- Town centre
Note not available
Note not available
Financial
- Council Tax Band G
- Ground rent 1332.14 £/year
EPC
- Energy Efficiency Rating (Current) 85
- Energy Efficiency Rating (Potential) 85
- Tenure type Leasehold
Media
No information available
This site is protected by reCAPTCHA and the Google Privacy Policy and Terms of Service apply.





















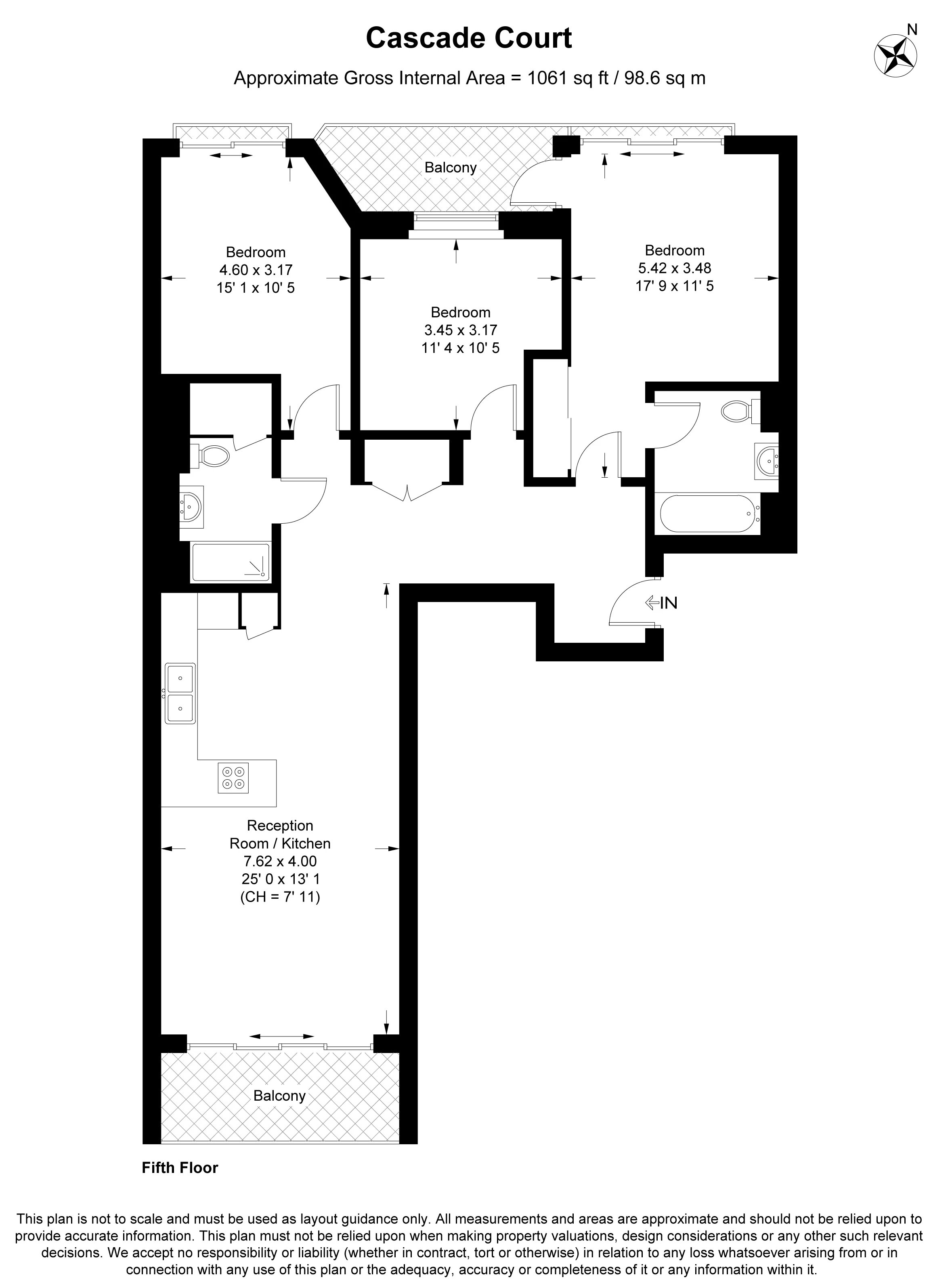
Set on the fifth floor of this striking modern development, this well-proportioned apartment offers approximately 1,061 sq ft (98.6 sq m) of internal space, combining contemporary design with excellent natural light throughout.
Learn moreThe heart of the home is a spacious open-plan reception and kitchen, extending over 25 ft, with floor-to-ceiling windows opening onto a private balcony. The sleek, fully integrated kitchen features a peninsula with seating, ideal for both everyday living and entertaining.
The principal bedroom is generously sized and benefits from built-in storage and a stylish en-suite bathroom. Two further double bedrooms provide flexibility for family living, guests, or a home office. A second family bathroom and additional storage complete the internal accommodation.
A standout feature of the property is the second private balcony accessed from the bedrooms, offering a peaceful outlook within the development.
Cascade Court forms part of Vista, Chelsea Bridge, an award-winning Berkeley Homes development overlooking Battersea Park. Residents enjoy beautifully landscaped private gardens, creating a calm and secluded environment in the heart of the city. Additional amenities include access to a residents-only vitality pool, sauna and fully equipped gym.
The property is ideally located between Battersea Park and Battersea Power Station, offering immediate access to world-class amenities including restaurants, cafés, shops and leisure facilities. Sloane Square is also within easy reach, providing further access to some of London’s most renowned boutiques and dining destinations.
Excellent transport links are close by, including Battersea Power Station Underground (Northern Line extension) and Battersea Park rail station, providing quick access into central London.
This is an ideal opportunity for both owner-occupiers and investors seeking a premium property in one of London’s most dynamic and desirable neighbourhoods.
Leasehold: 987 Years Remaining
Council Tax: Wandsworth Band G (£1,700.58 per year)
Ground Rent: £1332.14 per year, reviewed every 10 years.
Service Charge: circa £9,530 per year